Copropriété 115 REPUBLIQUE

COPROPRIETE : 115 avenue de la République

 

Etudes et réalisation en vue de la rénovation de la copropriété

- Parties communes

- Appartements

- Rénovation diverses, compris volet énergétique et ravalement              

 

Missions :

Visite virtuelle effectuée

Relevés maquette numérique 3D (en cours)

Diagnostic avec APS (à suivre)

 

architecte :  ei - Ph. LHERITEAU     architecte DPLG

bet Thermiques et fluides :     AIC (44)

 

SAINT NAZAIRE (44) -  année 2024/2025

Maîtrise d'ouvrage privé ; copropriété

Syndic : CITYA (La Baule)

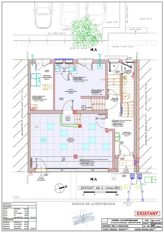
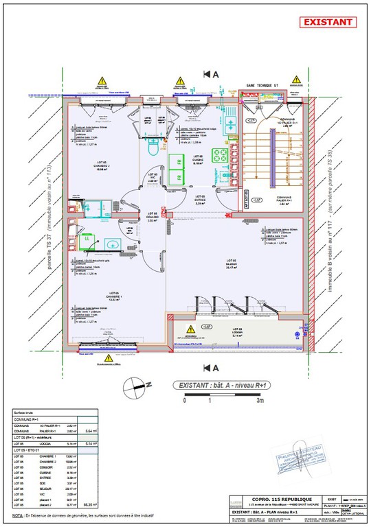
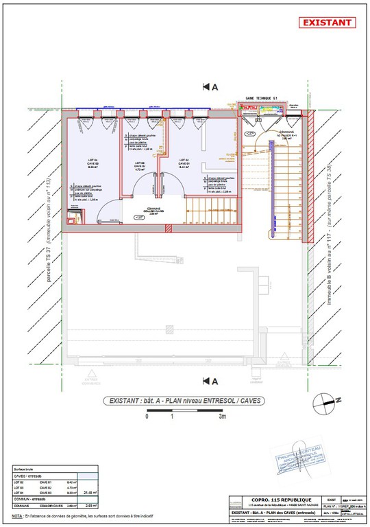
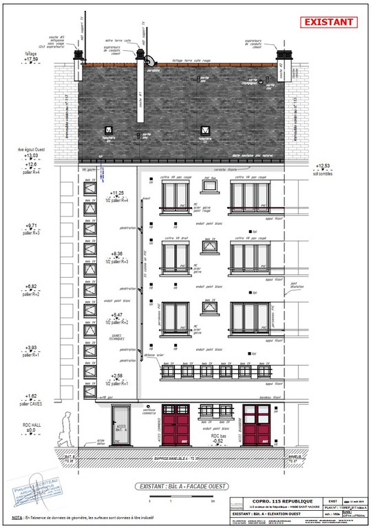
EXISTANT